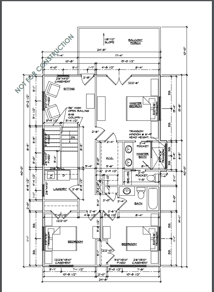
912 S Blount St, Raleigh




Great Open First Floorplan with large glass sliding doors leading to screen porch. Second floor balcony with view of Raleigh skyline!
1813 sqft
3 bedroom, 2 1/2 baths
$525,000
NOTE: Elevation and floorplans taken from plans.